ბინა, რომელსაც დღეს გაგაცნობთ, იაპონიაში, ტოკიოს ცენტრში მდებარეობს, მისი საერთო ფართობი 57 მ2-ია და ის კომპანია KENTA HIRAYAMA ARCHITECT & ASSOCIATES-ის ნამუშევარს წარმოადგენს. სახლის ინტერიერი საკმაოდ თამამი გადაწყვეტებით ხასიათდება, რაც მასალათა კონტრასტში, დიზაინის მიმზიდველობაში და გეგმარებაში გამოიხატება.
შენობა საინტერესოა იმით, რომ ის წარმოადგენს 50 წლის ბეტონის სტრუქტურას, რაც პროექტის ავტორებმა დიზაინში ორიგინალურად გამოიყენეს. ბეტონის ზედაპირს ახალი, დამატებული ფენა მოაშორეს და ძველი იერი აღუდგინეს, ხოლო ბეტონის ფაქტურას თანამედროვე მოსაპირკეთებელი მასალები და ხე შეუხამეს. სწორედ აღნიშნულ კონცეფციაზე დაყრდნობით შეიქმნა თანამედროვე, მინიმალისტური, ფუნქციური და განსხვავებული საცხოვრებელი.
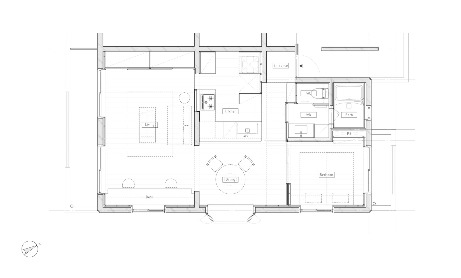
პროექტის კიდევ ერთი თამამი გადაწყვეტა სივრცის გეგმარებას უკავშირდება. სახლში ოთახშორისი კარი თითქმის არ გვხვდება, რაც პატარა სივრცეს სიმსუბუქეს და სიფართოვის შეგრძნებას მატებს, ბინის მთლიანობას კი გამოკვეთს. ზონირებისთვის ავეჯი და ბეტონის კონსტრუქციაა გამოყენებული. აღსანიშნავია ისიც, რომ გეგმარება სამზარეულოს გარშემო ვითარდება, რომელიც ბინის ცენტრალური ზონაა და სხვადასხვა სივრცეს ერთმანეთთან აკავშირებს.

სამზარეულო არასტანდარტული იერსახით ხასიათდება, რაც სივრცის ინდივიდუალიზმსა და სითამამეს უსვამს ხაზს. ავეჯი და სათავსოები სრულად ხითაა მოპირკეთებული, სამზარეულოს ზედაპირზე კი ფოლადის ფაქტურაა გამოყენებული. სამზარეულოს მოსამზადებელი ზონა სრულად მინიმალისტურია, სათავსოსთვის კი მასიური ხის კარადები არასტანდარტულადაა განლაგებული, რაც ბეტონის კედელთან სასიამოვნო კონტრასტს ქმნის და ერთგვარ სიცივეს აბალანსებს.
სამზარეულოს მოპირდაპირედ, დიდი ზომის ვიტრაჟთან მოწყობილია მცირე სასადილო კუთხე, შავი მრგვალი მაგიდითა და სკამებით, რომელიც აქცენტირებულ წერტილს ქმნის სახლში. ყურადღებას იპყრობს ხე, რომელიც ბუნებასთან კავშირის განცდას ამძაფრებს და ექსტერიერს უკავშირდება.
სამზარეულოდან მისაღებ ოთახში გავდივართ, სადაც მოსასვენებელ ზონასთან ერთად, სამუშაო კუთხეა მოწყობილი. გრძელი ხის მაგიდა ფანჯარასთანაა გაკეთებული, მის ზედა მხარეს კი ღია თაროები წიგნებით არის დატვირთული.
მოსასვენებელ კუთხეშიც მინიმალიზმი და სიმსუბუქე იგრძნობა. კრემისფერი ტახტი სასიამოვნოდ ეხამება ხის იატაკსა და ბეტონის კედლებს. სიმყუდროვის შესაქმნელად შემოტანილია ღია ფერის ხალიჩა და პუფი. საინტერესო და ორიგინალური დიზაინით ხასიათდება ჟურნალის მაგიდაც, რომელიც გადამუშავებული ძველი ხის მასალისგან არის დამზადებული. მრავალფეროვნების მისაღებად კი ზედაპირად მინაა გამოყენებული, რაც კონტრასტის შეგრძნებას ამძაფრებს.
ინტერიერის სახასიათო და თამამი დეტალია განათებაც, რომელიც ყოველგვარი შელამაზების გარეშე, პირდაპირ სადენების სახით არის წარმოდგენილი და ეფექტურ სახეს სძენს სივრცეს.
საძინებელი სასადილო ზონისგან მოძრავი კარით გამოიყოფა, რომელიც ამავდროულად სივრცესთან გაერთიანების შესაძლებლობასაც იძლევა. ოთახის სიმცირის მიუხედავად, სივრცე ფუნქციურობით ხასიათდება და კომფორტულ პირობებს ქმნის მაცხოვრებლებისთვის. ამ ზონაშიც ღია, მონოტონური ფერთა გამა მეორდება, სათავსოს სახით კი კედელზე ღია თაროებია გაკეთებული.

მინიმალისტური სტილით შესრულებული ტოკიოში მდებარე ბინა გაბედული დიზაინით გამოირჩევა, რაც განსხვავებული დეტალების საინტერესო სინთეზში ვლინდება. სივრცეში ბეტონის ფაქტურას დომინანტი ხის მასალა ორგანულად ერწყმის, საცხოვრებელი კი ფუნქციურად ისეა გადანაწილებული, რომ ერთიანი სივრცე მიიღება, რომელშიც ზონირებისთვის ავეჯია გამოყენებული. საინტერესო დეტალია განათებაც, რომელიც ასევე განსხვავებული დიზაინით ხასიათდება.
პროექტის ავტორი: KENTA HIRAYAMA ARCHITECT & ASSOCIATES
“იცხოვრე შენი ცხოვრებით” სათქმელად უფრო ადვილი, გასაბედად კი რთულია. ხშირად გაბედვა უნდა ერთი შეხედვით მარტივ საკითხებს, მაგალითად, სახლის საკუთარი გემოვნების მიხედვით მოწყობას. m2-ის კამპანია “გაბედე” სწორედ ამ საკითხზე გვაფიქრებს და კიდევ ერთხელ გვახსენებს, რომ ყველაფერი საინტერესო გაბედვით იწყება.
გაბედე, იცხოვრე შენი ცხოვრებით!
რუბრიკა „გაბედეს“ წარმდგენია m2

























