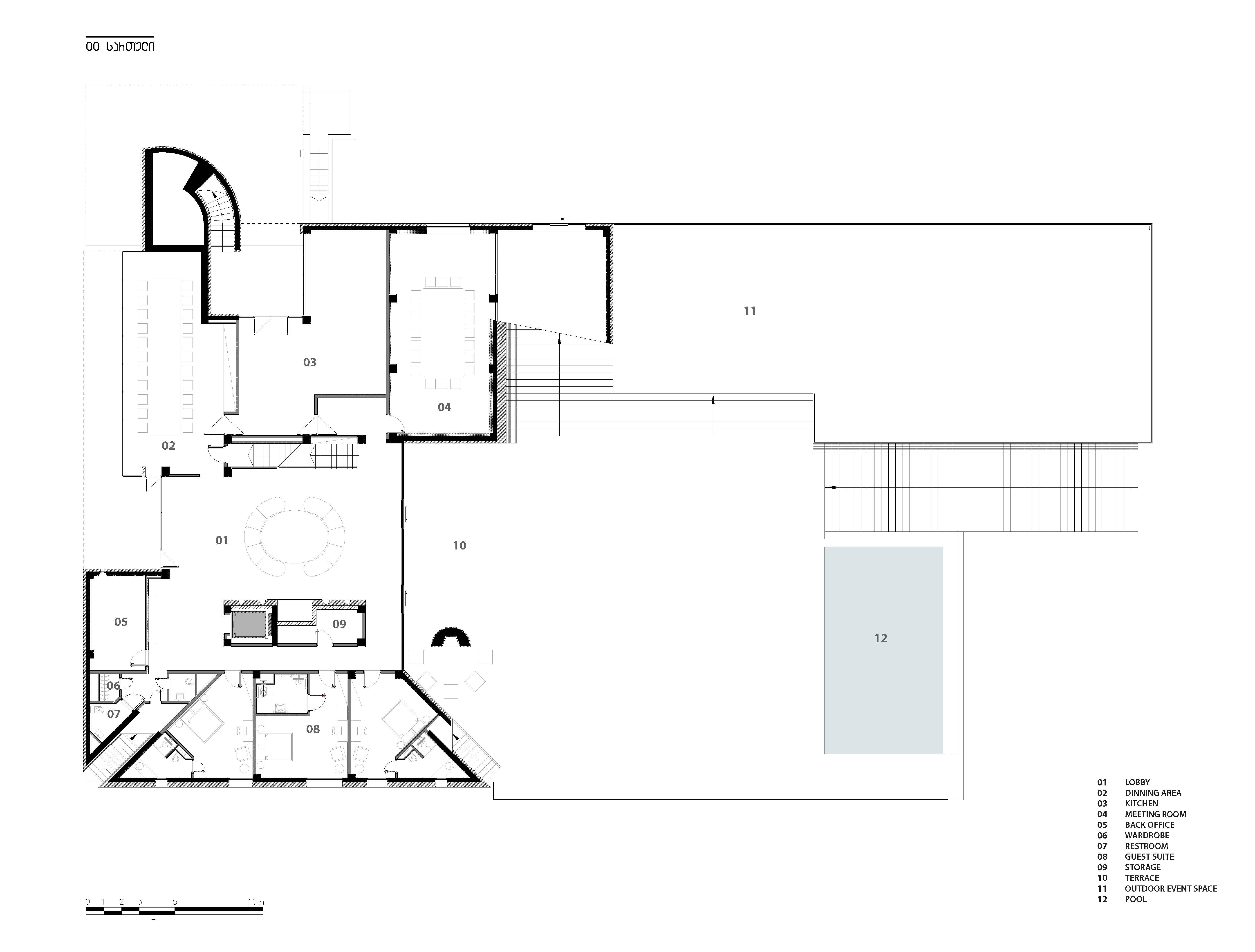
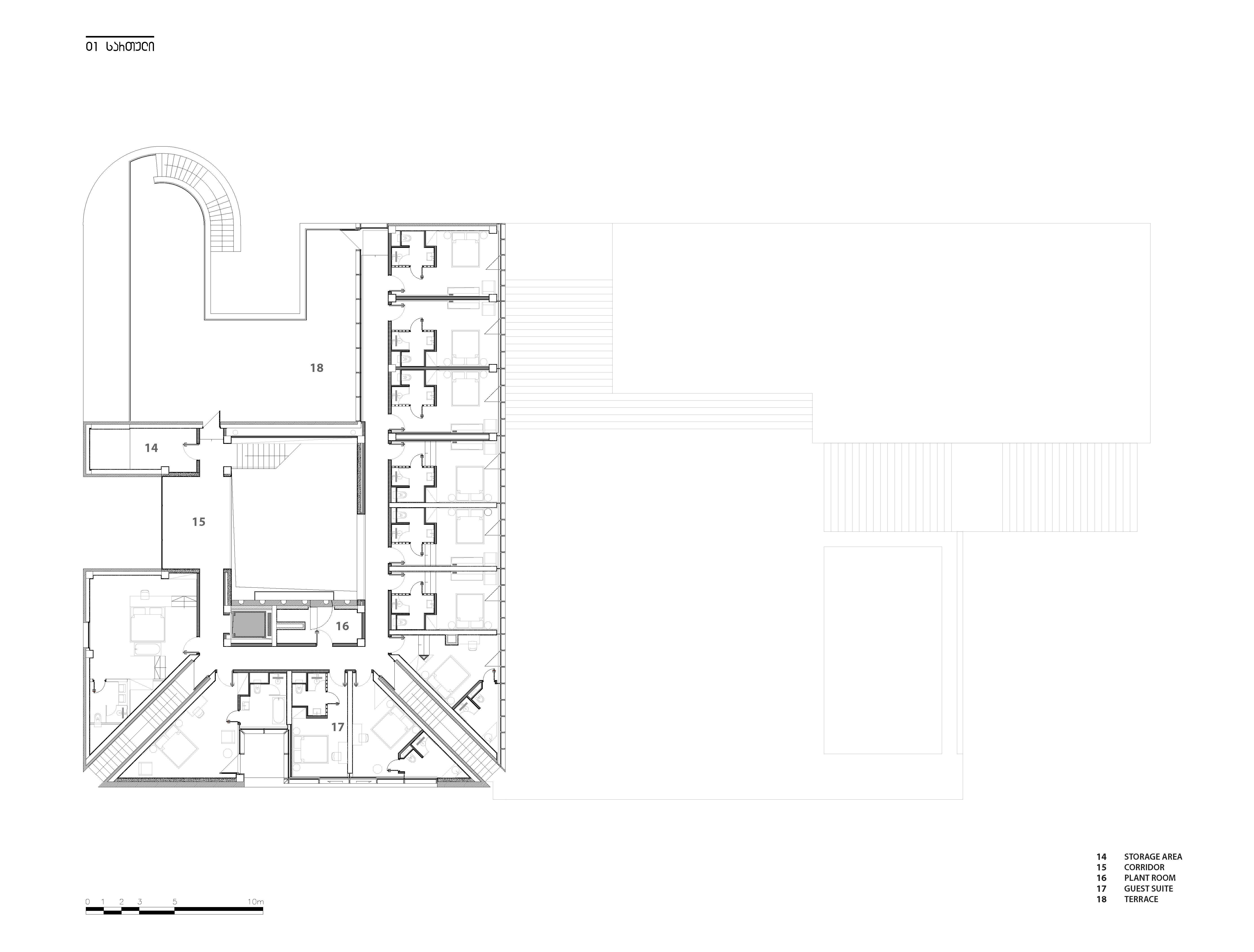
ღვინის ქარხნის არქიტექტურული პროექტი, რომელზეც სტუდია Laboratory of Architecture #3-მა იმუშავა, ალაზნის ველის ისტორიულ ლანდშაფტში ორგანულად ეწერება და მეღვინეობის საუკუნოვან კულტურას თანამედროვე არქიტექტურული ენით გადმოსცემს. გარდა საწარმოსა, 4200 კვადრატულ მეტრზე გადაჭიმული ობიექტი ასევე მოიცავს მცირე სასტუმროს, მიმღებ სივრცეს, საკონფერენციო ზონასა და რესტორანს.
კავკასიონის ქედისა და ვენახების ფონზე განთავსებული ნაგებობა არა მხოლოდ ფუნქციურ საწარმოო სივრცეს, არამედ ემოციურ და სიმბოლურ გარემოს ქმნის, სადაც არქიტექტურა ტრადიციის გაგრძელებად აღიქმება.

პროექტის კონცეფციის საფუძველს შუასაუკუნეების ტექტონიკის თანამედროვე ინტერპრეტაცია წარმოადგენს. ეს გავლენა მკაფიოდ არ არის დეკლარირებული, თუმცა იგრძნობა მონოლითურ მასებში, თაღოვან სიცარიელეებსა და მოცულობათა მკაცრ კომპოზიციაში. შენობა ვიზუალურად თითქოს ერთი დიდი ლოდისგან არის გამოკვეთილი, თუმცა მისი მასა დაყოფილია არქიტექტურულ დეტალებად, რომლებიც ერთმანეთს მკვეთრი მოცულობითი “პაუზებითა” და ჩრდილებით ემიჯნება.
პროექტის არქიტექტურული სახე აგებულია კონტრასტების ბალანსზე. ნაგებობა ერთდროულად მყარად დგას მიწაზე და ამავე დროს, გარკვეულ წერტილებში თითქოს ჰაერშია „შეჩერებული”. ეს დუალიზმი ზედაპირების დამუშავებაშიც გრძელდება: ხელით დამუშავებული, ტაქტილური კედლები მიწასთან კავშირს უსვამს ხაზს, ხოლო პრიალა, ცივი ზედაპირები გარემოსთან შერწყმის ეფექტს ქმნის.
ინტერიერში მთავარი აქცენტი ორსართულიან ცენტრალურ დარბაზზე კეთდება, რომელიც შინაარსობრივად შუასაუკუნეების სასახლის დარბაზს მოგვაგონებს, ხოლო ფუნქციურად სტუმართა კომფორტულ მისაღებ სივრცედ მუშაობს.
ამ სივრცის მეორე ცენტრალური ელემენტია კიბე, რომელიც ორღანს წააგავს; მისი ნაწილაკებად ჩამოყალიბებული გეომეტრია კი შენობის აღმოსავლეთ ფასადზე გამოყენებული მსგავსი თემის გაგრძელებაა.
ინტერიერი მონოქრომულია, თუმცა შედგება რამდენიმე ელემენტისგან, როგორიცაა ხისა და თაბაშირის შეხამებული ტექსტურები. ხოლო მცირე ფერადი ჩანართები ქართული ფრესკის ტრადიციას ეხმიანება, რაც ინტერიერს მშვიდ და შეკავებულ ხასიათს ანიჭებს.
Laboratory of Architecture #3-ის აღნიშნული პროექტი მკაფიო მაგალითია იმისა, თუ როგორ შეიძლება ისტორიული მემკვიდრეობისა და თანამედროვე არქიტექტურული აზროვნების ჰარმონიული თანაარსებობა, სადაც ფორმა, მოცულობა და სივრცე ერთიან, გააზრებულ ნარატივად ყალიბდება.
არქიტექტურული სტუდია: Laboratory of Architecture #3
არქიტექტორები: დიმიტრი შაფაქიძე, ირაკლი აბაშიძე, ტატიანა ქოიავა, გიორგი დავაძე




















































