2020 წელს საფრანგეთში, კერძოდ ებერშეიმში ერთი საკმაოდ დახვეწილი და, რაც მთავარია, ფრანგული კულტურისთვის შესაფერისი სახლი აშენდა. ამ სახლს ნედლი ბეტონის დიდი მონოლითური სახურავი აქვს, რომლის ქვეშაც 8 პერიფერიული სვეტი და ორი ცენტრალური ბირთვი ერთიანდება. ერთი შეხედვით, ეს არქაული თავშესაფარია, თუმცა, ამ კედლებს მიღმა სრული თანამედროვეობა იმალება.

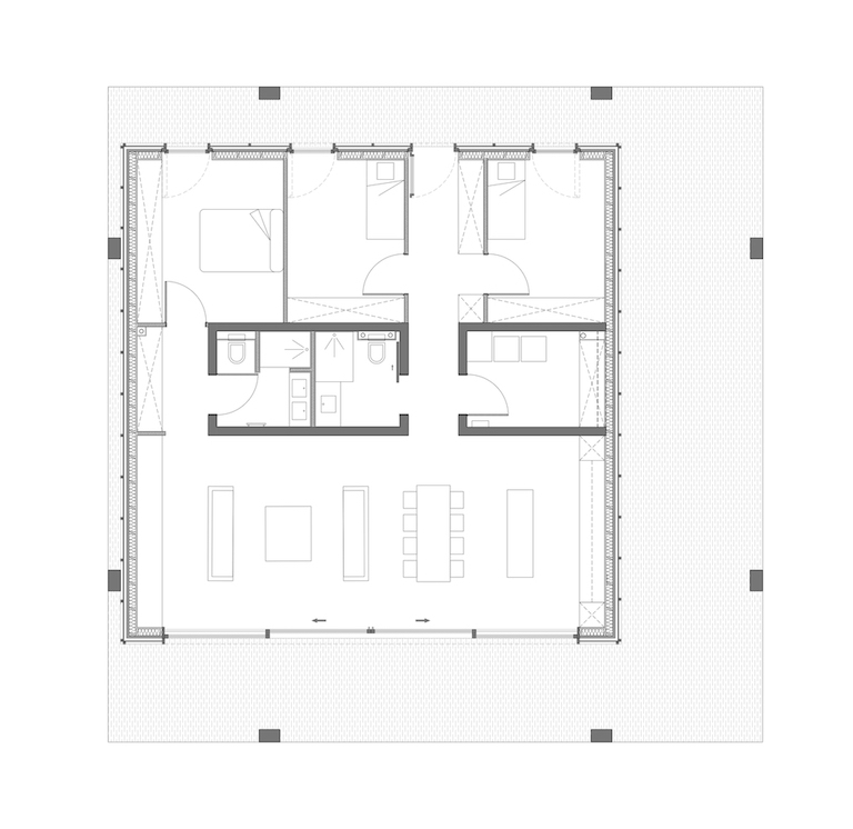
სახლის ფორმა ერთგვარად პასუხობს სასოფლო სამეურნეო დაბლობის ჰორიზონტალურობას. სახურავი ქმნის კვადრატს, რომლის ზომაცაა 15 მ x 15 მ, ხოლო საცხოვრებელი კი – 12 მ x 12 მ. ბინის ნაწილი გარშემორტყმულია არაკონსტრუქციული ხის ჩარჩოს კედლებით, რომელიც მოიცავს ბიომომარაგების მატყლს და ხის ბოჭკოს იზოლაციას.

სახლის შესასვლელი ერთგვარად მისი გასასვლელიცაა, რადგან სწორედ ამ ჰოლით უკავშირდება სახლის ორი ნაწილი ერთმანეთს. შესაბამისად, ვიზიტორს შეუძლია, გაიაროს სახლი ქუჩიდან ბაღამდე. სახლის გეგმა კი ორგანიზებულია ძალიან მარტივად ამ 2 ბლოკის გარშემო, რომლებიც აერთიანებს სველ წერტილებს, ტექნიკურ ოთახებს და სათავსოს.

ქუჩის მხარეს, დახურული ფასადით დაფარულ ოთახებს აქვთ მაღალი ფანჯრები, რაც ოთახს მაგიურ სიკაშკაშეს ანიჭებს, ფანჯრები კი, თავის მხრივ, ბუნებრივად აერთიანებენ ფასადის ჩარჩოებს. ბაღის მხრიდან, სამზარეულო უკავშირდება მისაღებ ოთახს. მსგავსი მოწყობით მყარდება მჭიდრო ურთიერთობა ბაღთან. ეს უწყვეტობა ინტერიერს და ექსტერიერს შორის კულმინაციას აღწევს ორი ფანჯრის გახსნით, რაც ქმნის თავისუფალ გასასვლელს ბარიერისა და ძელის გარეშე.

ეს პროექტი, თავის მხრივ, ცდილობს აჩვენოს, რომ სტანდარტული ბიუჯეტითაც კი შესაძლებელია საფრანგეთის გარეუბანში ესთეტიკური და სასიამოვნო საცხოვრებელი სივრცის შექმნა. ყველაფერ ამას კი შესაძლებელს ხდის მარტივი და გამძლე მასალები.
არქიტექტურული სტუდია: AL PEPE architects
ფოტოგრაფი: Alexandre Besson / Pascal Philbert


























