ბინა, რომელზეც დღეს გიამბობთ, ვაკეში, ჭავჭავაძის გამზირზე მდებარეობს. ეს არის 60 კვადრატული მეტრის მქონე საცხოვრებელი სივრცე, რომელიც ახალგაზრდა მამაკაცის მარტივი და მინიმალისტური ცხოვრებისთვის შეიქმნა. პროექტზე სტუდია “იდააფ არქიტექტორებმა” იმუშავა.
“ბინა 73A თბილისის ცენტრალურ, ერთ-ერთ ყველაზე მჭიდროდ დასახლებულ უბანში მდებარეობს. ეს არის ქუჩა მაღალსართულიანი ბიზნეს ცენტრებითა და საცხოვრებელი კორპუსებით, სადაც ურბანული პროცესები აქტიურად მიმდინარეობს. ქალაქის ყოველდღიური ხმაური და სწრაფი ცხოვრების რიტმი ბინის ვიტრაჟებიდან მძაფრად აღიქმება. მიუხედავად ამისა, ინტერიერის დიზაინის კონცეფცია და ტექსტურები ისეა შერჩეული, რომ ქალაქის დინამიკა შიდა სივრცეების სიმყუდროვეს ვერ არღვევს,” – ნანა ზაალიშვილი.
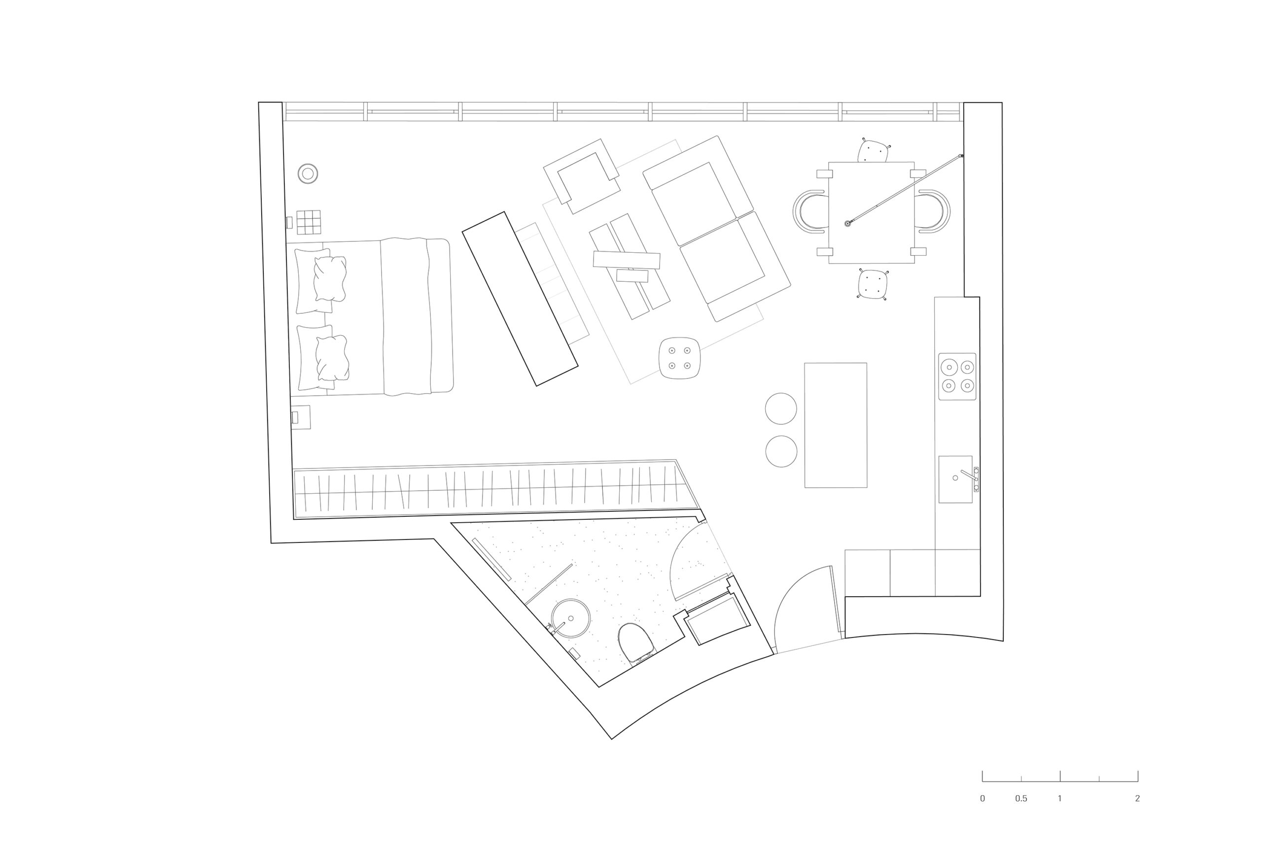
ბინის ერთიანი, გახსნილი სივრცე იდეალურად ითავსებს ყველა საჭირო ფუნქციას ცხოვრებისთვის. მთავარ აქცენტს სამზარეულო და ნატურალური მარმარილოს ქვის კუნძული ქმნის, რომლის ტექსტურებიც ბუნებრივი მოტივებით ავსებს ბინას.
ინტერიერის განუყოფელი ნაწილია კონსტრუქციული კოლონა, რომელიც საძინებელს დანარჩენი ბინისგან ჰყოფს. კოლონა მოპირკეთებულია ქართული ბაზალტის ქვის პანელებით, რომლის ნეიტრალური ფერიც ბინაში სვეტის მძაფრ აქცენტს შლის. ბინის ვიტრაჟებიდან იშლება ხედები და მზის ჩასვლის შთამბეჭდავი პანორამა თბილისის ჩრდილო დასავლეთ ნაწილზე. ინტერიერს განსაკუთრებულ ხიბლს სძენს თანამედროვე ქართველი მხატვრის, მაკა ბატიაშვილის ნამუშევრები, რომლებიც ძალიან ორგანულად ერწყმის ბინაში გამეფებულ ატმოსფეროს.
კედლები ნაცრისფერია და დამუშავებულია მიკრო ცემენტით. მისი ცივი ტონალობა შეთავსებულია მუქი ხის პანელებით მოპირკეთებულ კედლებთან, რომლის მიღმაც სააბაზანო და საჭირო კარადები დაგეგმარდა, რაც ინტერიერს ზედმეტობებისგან იცავს და ერთიანი სივრცის აღქმას ხელს არ უშლის. სააბაზანოც მთლიანად მიკრო ცემენტით შესრულდა, რომელთანაც კონტრასტს ასევე მიკრო ცემენტის ცილინდრული ნიჟარა და Cle-ს შავი ფერის Zellige tiles ქმნის.
რაც შეეხება ავეჯს, უმეტესობა ინდივიდუალური დიზაინითაა შექმნილი. აქცენტურია “იდააფ არქიტექტორების” სასადილო მაგიდა „ელემენტი“, რომელიც ასწლოვანი მასიური მუხით შეიქმნა და მასიური კაკლის ხის მცირე მაგიდა „აგური“ საძინებელში.
ასევე დამწვარი ხის მაგიდა 73A მისაღებ ოთახში, რომელიც აგრეთვე იდააფ არქიტექტორების სტუდიაში დამუშავდა.

სანათები &Tradition, HAY, RBW და FAS-ის მაღაზიებიდან შეირჩა. ავეჯსა და სხვა ნივთებზე თანამშრომლობა შედგა Around the Studio, Buster & Punch, Cle Tiles, Hay და &Tradition-თან.
დიზაინ სტუდია: იდააფ არქიტექტორები
წელი: 2019-2022
ფოტოგრაფი: გურამ კაპანაძე
























