რეკლამა
facebook
instagram
#პოპულარული
#რჩეული
#ტრენდული
Menu
არქიტექტურა
ინტერიერი
პროექტები საქართველოდან
დიზაინი
იდეები შთაგონებისთვის
რემონტი
სახლი და გამწვანება
რჩევები
ადამიანები
ამბები
Switch skin
ღამის რეჟიმი
დღის რეჟიმი
Search
Search for:
Search
#პოპულარული
#რჩეული
#ტრენდული
Menu
Switch skin
ღამის რეჟიმი
დღის რეჟიმი
Login
რემონტი
როგორ გავაკეთოთ რემონტი
More stories
in
რემონტი
რა უნდა გავითვალისწინოთ მანამ, სანამ აუზის მოწყობას გადავწყვეტთ
in
რემონტი
რემონტის გიდი: ვარჩევთ ხის იატაკს საკუთარი სახლისთვის
in
რემონტი
რემონტის გიდი: როგორ შევღებოთ ჭერი
in
რემონტი
როზეტები და ჩამრთველები სამზარეულოში – როგორ დავგეგმოთ მათი განლაგება
in
რემონტი
რა უნდა გავითვალისწინოთ ხის იატაკის საფარის შერჩევისას
in
რემონტი
რა მასალების გამოყენებაა შესაძლებელი აბაზანაში ფილის გარდა
in
რემონტი
რა უნდა ვიცოდეთ “ფანკოილის” შესახებ
in
რემონტი
3 გავრცელებული მითი შეკიდული უნიტაზების შესახებ
in
რემონტი
გადახურვის სისტემები – პერგოლა, მარკიზა და ტენტი
in
რემონტი
რა არის საჭირო შენობის დემონტაჟის ნებართვის მისაღებად? – Homeis.ge-ს გიდი
in
რემონტი
რემონტის შეცდომები: ქეთი სიჭინავას გამოცდილება
in
რემონტი
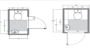
რამხელა შეიძლება იყოს მინიმალური ზომის ტუალეტი – Homeis.ge-ს რემონტის გიდი
მეტი
Congratulations. You've reached the end of the internet.
facebook
instagram
Back to Top
Close
Search for:
Search
არქიტექტურა
ინტერიერი
პროექტები საქართველოდან
დიზაინი
იდეები შთაგონებისთვის
რემონტი
სახლი და გამწვანება
რჩევები
ადამიანები
ამბები
Latest
პოპულარული
რჩეული
ტრენდული
facebook
instagram