ბინაში ფართი, როგორც წესი, შეზღუდულია, ამიტომაც ნებისმიერი არქიტექტორის მთავარი ამოცანა მინიმალურ ფართში მაქსიმალური ერგონომიკის, კომფორტისა და ვიზუალის მიღებაა. თუმცა, არსებობს მინიმალური ზღვარი, რომლის ქვევითაც ასეთი ფართები მის ფუნქციას კარგავს. სწორედ ამიტომ, აუცილებელია იმ სტანდარტების გათვალისწინება, რომლებიც დარგის პროფესიონალთა მიერ არის დადგენილი. ამასთან დაკავშირებით, დღეს გვსურს ტუალეტის მინიმალური ზომების შესახებ ვისაუბროთ.

პირველ რიგში, უნდა გვახსოვდეს, რომ ნებისმიერ ცალკე მდგომ ტუალეტში ან მის მახლობელ ოთახში ძირითადად 100მმ დიამეტრის ქმონე საკანალიზაციო მილი გადის, რომლის არსებობის გათვალისწინებაც აუცილებელია ოთახის გეგმარებისას.
იმ შემთხვევაში თუ ცენტრალური საკანალიზაციო მილი გვერდით ოთახშია, შეკიდული უნიტაზის დამონტაჟების დროს კედლიდან უნდა გადმოვიდეთ 20 სმ-ზე, ვინაიდან შეკიდული უნიტაზის საინსტალაციო სიღრმე, როგორც წესი, 15 სანტიმეტრს შეადგენს, ხოლო 20 სანტიმეტრი სავსებით საკმარისი იქნება გოფრირებული საკანალიზაციო მილების მისაყვანადაც და მისაერთებლადაც.

თუ ძირითადი საკანალიზაციო მილი უშუალოდ ტუალეტშია, მაშინ მილიდან 25 სანტიმეტრით უნდა გადმოვიდეთ, ვინაიდან უმეტეს შემთხვევაში, უნიტაზისა და მილის ცენტრები ერთმანეთს არ ემთხვევა, ხოლო მიერთების კორექტული კუთხის მისაღებად სწორედ 25 სანტიმეტრიანი სივრცეა საჭირო.

უნიტაზის ჩაშენების შემდეგ მიღებულ ზედაპირს უმეტესად თაბაშირ-მუყაოთი და ფილებით აპირკეთებენ. ამ ზედაპირიდან უნდა გადმოვიდეთ 52-56 სანტიმეტრზე, ვინაიდან სწორედ ამ ზომით დიაპაზონში მერყეობს სტანდარტული უნიტაზები.

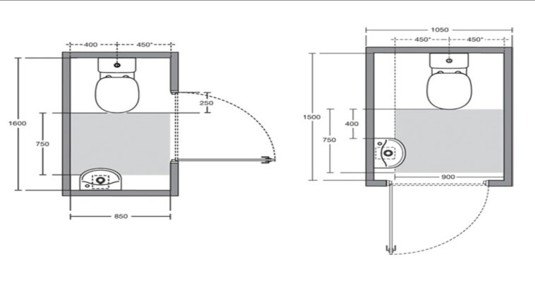
თავისუფალი ზონისთვის უნიტაზიდან მინიმუმ 45 სანტიმეტრია საჭირო, რათა მისი ექსპლუატაცია შესაძლებელი იყოს, ხოლო მეტი კომფორტისთვის ამ ზომის 55 სანტიმეტრამდე გაზარდაა მიზანშეწონილი.
ყოველივე ზემოთქმულიდან გამომდინარე, სიგრძე უნიტაზის კედელსა და კარს შორის მინიმუმ 1 მეტრი უნდა იყოს, ხოლო კომფორტული მოხმარებისთვის 1,1 მ.

რაც შეეხება ტუალეტის სიგანეს, ის მინიმუმ 87 სანტიმეტრი უნდა იყოს თუ აქ ჰიგიენური შხაპი და ნიჟარა არ არის დამონტაჟებული. მათი არსებობის შემთხვევაში, სიგანე მინიმუმ 1 მეტრი უნდა იყოს (ნიჟარა 20 სმ), ხოლო კომფორტული სიგანე 1,1 მეტრს შეადგენს.








