ამ პროექტის მიზანს სან-ფრანცისკოში, სიერა-ნევადას მთებში, ტაჰოს ტბის მახლობლად მდებარე საცხოვრებლის გაფართოება წარმოადგენდა. მიწის ნაკვეთი ჩრდილოეთისკენ მიმავალ ფერდობზე მდებარეობს და გადაჰყურებს მარტისის ველს, ზემოთ კი ასწლოვანი ფიჭვის ხეებით დამშვენებული მთის საუცხოო ხედებია.
მასალების თანმიმდევრული განთავსება სახლში სიმშვიდისა და ურთიერთკავშირის განცდას ქმნის. ბუნებრივი პალიტრა — კედრის ხე და ბაზალტის ქვა — სახლის ირგვლივ არსებული გარემოდან არის აღებული, რაც შენობას ბუნებასთან მტკიცე კავშირის დამყარებისა და მასთან ჰარმონიულად შერწყმის საშუალებას აძლევს. გარემოსთან ურთიერთობას კიდევ უფრო მეტად აძლიერებს დიდი ფანჯრები და მინის გასაგორებელი კარები, რომელთა საშუალებითაც ბუნება თითქოს სახლში იჭრება.



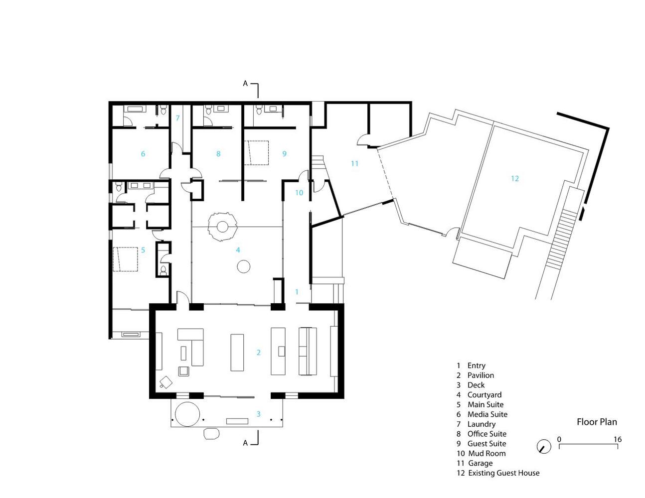
საძინებელი ზონები, რომლებიც ფერდობის უფრო მაღალ წერტილში მდებარეობს, მეპატრონეებს კონფიდენციალურობით უზრუნველყოფს. ოჯახის თავშეყრის სივრცეს კი წარმოადგენს ბეტონის პავილიონი, რომელიც შიდა ეზოს შორეულ ხედთან აკავშირებს.
ვინაიდან კლიმატის ცვლილება ტყის ხანძრების სიხშირესა და მასშტაბებს ზრდის, სწორი სამშენებლო სისტემების ჩამოყალიბება და შესაფერისი მასალების შერჩევა აუცილებელია. სწორედ ამიტომ, ბეტონის კედლები და ფოლადის ფანჯრები ცეცხლგამძლე ბარიერს უზრუნველყოფს და ადგილობრივი კედრისგან შექმნილ ინტერიერს იცავს.
არქიტექტურული ფირმა: Faulkner Architects
რუბრიკის წარმდგენია “ალიანს ჯგუფი”































