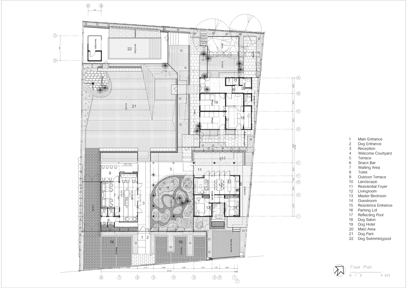
დღესდღეობით ერთმანეთისადმი პატივისცემა როგორც ადამიანის ყოფის, ასევე, არქიტექტურის მთავარი ორიენტირია. ეს სახლი აშენდა კაცისთვის, რომელსაც ძაღლები თავდავიწყებით უყვარს. მფლობელს სურდა აეშენებინა სახლი, რომელიც არა მხოლოდ მას, არამედ მის ძაღლებს დიდ სიამოვნებას მიანიჭებდა. სახლის ნაწილი წარმოადგენს სასტუმროს სხვა ძაღლებისთვის, ამით მეპატრონეს სურს, რომ მის მიერ განცდილი ბედნიერება ძაღლების სხვა მოყვარულებსაც გაუზიაროს. ეს სივრცე მოიცავს ძაღლების მოვლის მომსახურებას, სახლის უკან მდებარე სალონს და ასევე მოსაცდელ ოთახს მათთვის, ვისაც სურს თვალი ადევნოს აქტივობებს, რომლებშიც მათი საყვარელი ოთხფეხა მეგობრები არიან ჩართულნი.

კლიენტის ამ დამოკიდებულების ასახვისთვის არქიტექტურულმა სტუდიამ პროექტის კონტექსტის კვლევა დაიწყო, რათა არქიტექტურის თავისებურებები განსაზღვრულიყო. ნაქონპათომი არის სასოფლო-სამეურნეო დანიშნულების პროვინცია, რომელიც ცნობილია როგორც „ნაციონალური სამზარეულო“, სადაც ბაზარზე ღორის, ქათმის და ბრინჯის ექსპორტი ხდება. ამიტომ EKAR-მა წარსულიდან დღემდე შემორჩენილი ბევრი საინტერესო არქიტექტურული თავისებურება გამოიკვლია და აღმოაჩინა.
არქიტექტურული სტუდიისთვის სიტყვა „კონტექსტი“ არ გამოიყენება მხოლოდ ახლომდებარე შენობის, არსებული ხეების, ამინდის, გეოლოგიის ან ნებისმიერი ნივთისთვის, რომელსაც გრძნობებით აღვიქვამთ, არამედ ის ასევე მოიცავს აბსტრაქტულ დეტალებს, მაგალითად, ძაღლისა და ადამიანის ურთიერთობას. ამ ორ არსებას შორის დამოკიდებულების დასადგენად EKAR-ის გუნდის წევრებმა მათი ქცევებიც შეისწავლეს.

„მასშტაბი“ არის ყველაზე მნიშვნელოვანი განსხვავება, რომელსაც როგორც ადამიანები, ასევე ძაღლები აღიქვამენ. როდესაც ძაღლთან კომუნიკაციის დამყარება გვსურს, ცოტათი უნდა დავიხაროთ, რათა ჩვენს შორის არსებული ფიზიკური და გონებრივი დისტანცია შევამციროთ და ისინი უფრო თავდაჯერებული გავხადოთ. აქედან გამომდინარე, არქიტექტურა ადგილობრივი სასოფლო-სამეურნეო შენობის შესატყვისად არის შექმნილი, დაბალი სახურავი აქვს, მაგრამ EKAR-მა სახურავის ეს ელემენტი გამოიყენა იმისთვის, რომ ადამიანებისთვის სხვა არსებების არსებობა შეეხსენებინა.

სვეტის საყრდენი ძაღლის ფორმისთვის შესაბამისად არის შექმნილი დასაძინებლად, დასასუფთავებლად კი ძალიან მოხერხებულია. ასევე, საცურაო აუზის საფეხურები როგორც ადამიანის, ასევე ძაღლის მასშტაბების შესაბამისად არის დაპროექტებული. დიზაინის თითოეული ელემენტი მიზნად ისახავს ერთობლივი ცხოვრების წახალისებას, ძაღლისა და ადამიანის ერთმანეთთან დაახლოებასა და პატივისცემის გაღვივებას.




არქიტექტურული სტუდია: EKAR
ფოტოგრაფი: Rungkit Charoenwat







